H A U D Y H O M E
디자인사례
[#_52] 84평형 세미모던주택
상세내용
세라믹사이딩과 세라믹기와, 스타코플렉스를 이용한 세미모던주택
─
거실과 주방을 연결하여 가족과 함께 할 수 있는 공간으로 계획하였으며,
욕실 안에 세탁실을 따로 두어 활용도를 높였다.
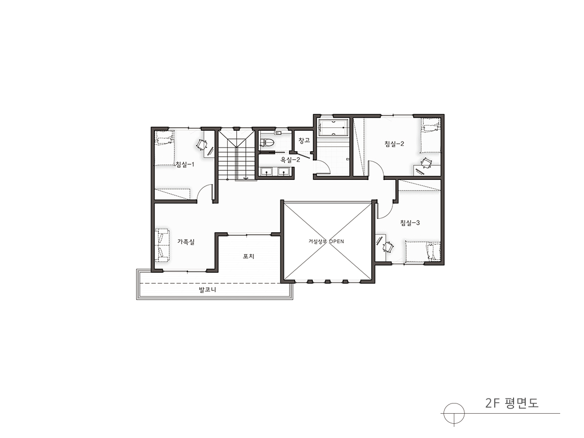
◆ 1층 면적 :128.16m²(38.77평) ◆ 2층 면적 : 101.20m²(30.61평) ◆ 전용면적 : 229.36m²(69.38평)
◆ 1층 포치면적 : 6.44m²( 1.95평) ◆ 2층 포치면적 : 11.94m²( 3.61평) ◆ 2층 발코니면적 : 7.56m²( 2.29평) ◆ 거실상부오픈 : 22.00m²( 6.65평)
건축개요
| 모델명필수 | #_52 | 디자인필수 | 84평형 세미모던주택 |
| 스타일 | SEMI MODERN | 평형대 | 70평대 이상 |
| 규모 | 2층 | 용도 | 1세대 |
| 구조 | 미국식 경량목구조 | 전용면적 | 229.36m² (69.38py) |
자재설명
| 지붕재 | 아스팔트슁글 | 외벽재 | 세라믹사이딩, 스타코플렉스 |
| 창호재 | 31mm 로이 3중 유리, 독일식시스템창호 (LG Z:IN) | 구조재 | SPF NO.2 |
| 단열재 | 인슐레이션(내벽:R-11, 외벽:R24+스카이텍 8T, 지붕:R-38) | 내장재 | 실크벽지, 아트월, 타일 |
| 바닥재 | 강마루, 타일 | 천장재 | 인테리어 천장, 등박스 |
- 갤러리
- 평면구조









