H A U D Y H O M E
디자인사례
[#_68] 149평 모던주택
상세내용
블랙&화이트 컬러에 직선적 요소의 느낌이 강한 모던한 상가주택
─
대지 형태와 레벨 차이를 고려하여 전면을 주도로를 향하도록 배치하여 보행자 및 차량 출입이 용이하게 계획하였다.
주변 근린생활시설들과 조화를 고려하여 심플한 매스에 징크, 세라믹 사이딩, 합성목재를 사용하여 도시적이며 차분하고 따뜻한 이미지의 상가주택을 계획하였다.
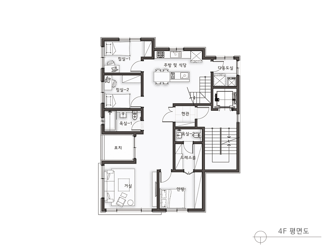
◆ 1층 면적 : 126.69㎡ ( 38.32평) ◆ 2층 면적 : 57.71㎡ ( 17.46평) ◆ 3층 면적 : 135.37㎡ ( 40.95평) ◆ 4층 면적 : 127.82㎡ ( 38.67평) ◆ 5층 면적 : 35.52㎡ ( 10.74평)
◆ 전용면적: 483.11㎡ (146.14평) 1층 포치 면적 : 3.74㎡ ( 1.13평) ◆ 4층 포치 면적 : 6.24㎡ ( 1.89평)
건축개요
| 모델명필수 | #_68 | 디자인필수 | 149평 모던주택 |
| 스타일 | MODERN | 평형대 | 70평대 이상 |
| 규모 | 4층이상 | 용도 | 상가주택 |
| 구조 | 철근콘크리트 | 전용면적 | 483.11㎡ (146.14py) |
자재설명
| 지붕재 | 리얼징크 | 외벽재 | 스타코플렉스, 세라믹사이딩, 리얼징크, 합성목재 |
| 창호재 | 22mm 로이 2중 유리, 슈퍼세이브5, 독일식시스템창호 (LG Z:IN) | 구조재 | 철근콘크리트 |
| 단열재 | 비드법 단열재 (가등급) | 내장재 | 실크벽지, 아트월, 타일, 디자인판넬 |
| 바닥재 | 강마루 | 천장재 | 인테리어 천장, 등박스 |
- 갤러리
- 평면구조












